Foto CENTRO DE TRANSFORMACIÓN TIPO INTEMPERIE
Centro de carga de 20 polos para intemperie 125 A. Trifásico. Empotrar Euroeléctrica

Características del Centro Transformación de Intemperie (E·ON) Mallazo equipotencial existente del CT. Masas de alta tensión. Herrajes cuadro de Baja Tensión. Cuba metálica y carriles de los transformadores de distribución. Pararrayos de alta tensión. Toma de tierra del neutro de BT (se realizará independientemente, situándose a una.
Centro de Transformación

over. Les CTC sont des Postes de Transformation Compacts montés sur châssis, de 250, 400 ou 630 kVA. Ils sont destinés aux systèmes de distribution avec tensions de jusqu'à 24 kV. Ils sont composés de: Cellule compacte 2L1P de 24KV/36KV et 400 ou 630A. Transformateur MT/BT de 250 kVA, 400 kVA ou 630 kVA.
Instalación Centro de Transformación Eléctrica García Bertomeu

Bases de Datos de Celdas prefabricadas. - Existe una gran gama de fabricantes y es posible añadir tantos como el usuario desee. -Figuran todos los tipos de celdas: línea, protección por fusibles, protección por automático, medida, seccionamiento, remonte, conmutación automática y autoválvulas-pararrayos.
QO312L125GRBCentro de carga de 12 polos para intemperie.125 A. Trifásico. Sobreponer PRODELEC

Guía FYZ30000 - Guía de interpretación Proyecto Tipo Centro de Transformación CT Interior Prefabricado Edición 3ª - diciembre 2021 Página 1 de 96
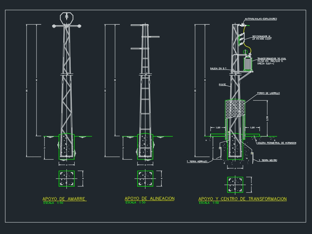
Apoyos y centro de transformacion intemperie (62.89 KB) Bibliocad
Pórtico. Gestor de centros de transformación (GCT): El GCT y sus elementos asociados permiten la Telegestión (lectura y operación remota) de los contadores de cliente instalados aguas abajo en la red de Baja Tensión alimentada desde dicho Centro de Transformación (CT). En el caso de Centros de transformación de intemperie el GCT será de.
Centro de carga de 2 polos para intemperie. Monofásico. Sobreponer Euroeléctrica

7.1 CENTROS DE TRANSFORMACIÓN DE INTEMPERIE SOBRE APOYO. Los centros de transformación de este tipo, estarán formados por el apoyo, su armado, el transformador MT/BT ubicado en el propio apoyo o a pie del mismo, sus herrajes, la correspondiente aparamenta de maniobra y protección en media y baja tensión, la instalación de puesta a tierra.
Foto CENTRO DE TRANSFORMACIÓN TIPO INTEMPERIE

Centro de transformación prefabricado. Centro de transformación de intemperie en proceso de montaje. Un centro de transformación es una instalación eléctrica que tiene como función principal modificar los niveles de tensión de la energía eléctrica que recibe y distribuye.. La energía eléctrica puede provenir de una red de alta tensión o de una red de media tensión, y se entrega a.
Centro de Transformación

Un Centro de Transformación es una instalación que se encarga de transformar la energía eléctrica de alta tensión (A.T.) a baja tensión (B.T.) o viceversa. Adaptando la tensión de entrada de la red, a las necesidades del receptor que se conecta a la salida del centro, mediante la instalación de uno o varios transformadores.
Derecho positivo (y negativo) Suministros en alta tensión, con medidas en baja
Página ET/5033 Centro de Transformación de Intemperie sobre apoyo ET/5033 Ed.1 3 de 14 Especificación Técnica Hidrocantábrico Distribución Eléctrica, S.A.U.
Centro de Transformación

Un Centro de Transformación es una instalación que se encarga de transformar la energía eléctrica de alta tensión (A.T.) a baja tensión (B.T.). Adaptando la tensión de entrada de la red, a las necesidades del receptor que se conecta a la salida del centro, mediante la instalación de uno o varios transformadores reductoras de media.
Centro de carga de 2 polos para intemperie. Monofásico. Sobreponer Euroeléctrica

La reducción de tensión suele ser desde 3KV, 11KV, 15KV, 20KV o 30KV, a 400V entre fases o 230V entre fase y neutro, reducción que realiza el transformador del CT. Los centros de transformación generalmente emplean transformadores trifásicos. 1 Celdas de Entrada y Salida de Línea (20KV) 2 Celda de Protección. 4 Celda de Transformación.
Instalación y mantenimiento de Centros de Transformación JUDELSA S.L. Servicios Energéticos

Para su instalación se debe disponer de una acometida aérea en punta (final de línea) o bien de una línea pasante de la que se derive una línea hasta el centro de transformación. Las dos variantes fundamentales son: sobre apoyo y compacto bajo apoyo. CT de intemperie sobre apoyo. Se utiliza principalmente en zonas rurales.
Centro de carga de 2 polos para intemperie. Monofásico. Sobreponer Euroeléctrica

Instalación Centro de Transformación YouTube

El usuario debe realizarlo según la disponibilidad de su local. 2o/ Una vez definidas las condiciones generales, se procede al diseño del centro de transformación. Para. comenzar se inserta la envolvente de obra civil se definen sus valores de largo y ancho, además del ancho y alto del cerramiento exterior.
Centros compactos de transformación Tablelec

Características principales. Envolvente fabricada en poliéster reforzado con fibra de vidrio de color gris RAL 7035, autoextinguible y resistente a los álcalis y agentes atmosféricos. Compuesto por dos módulos unidos entre si verticalmente. El módulo inferior será el correspondiente al embarrado de entrada BT transformador y el módulo.
Centro de Transformación

1 OBJETO. Proporcionar, tanto a los trabajadores propios, como a las empresas que acceden a las instalaciones, la información de riesgos y medidas preventivas, así como las medidas de emergencia a aplicar en caso de urgencia, de las instalaciones tipo de UFD Distribución Electricidad S.A. (en adelante UFD) Esta información, juntamente con.
.